Industria/Micro Sphere SA - Nuovi laboratori R&D
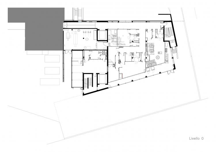
Ampliamento della produzione e realizzazione di nuovi laboratori R&D, per andare incontro alle esigenze di crescita dell'azienda farmaceutica Micro Sphere SA, nell' edificio realizzato a partire da uno stabile prefabbricato degli anni '80, che oggi costituisce un complesso costruttivo chiuso in se stesso affacciato lungo il fiume Tresa. Il nuovo stabilimento é caratterizzato da una tripartizione planimetrica determinata dalla particolarità dei processi di produzione.
Committente
Micro Sphere SA
Micro Sphere SA
Oggetto
Nuova produzione e nuovi laboratori R&D
Nuova produzione e nuovi laboratori R&D
Luogo
6998 Monteggio
6998 Monteggio
Incarico
Progetto e direzione lavori
Progetto e direzione lavori
Capo progetto
M + R
M + R
Ing. civile
Studio d'ingegneria Lucini Cesare Sagl - Paradiso
Studio d'ingegneria Lucini Cesare Sagl - Paradiso
Specialista energia
UCE Sagl - Paradiso
UCE Sagl - Paradiso
Specialista impianto di ventilazione HVAC
Cattaneo Impianti SA - Chiasso
Cattaneo Impianti SA - Chiasso
Specialista impianto termosanitario
Cattaneo Impianti SA - Chiasso
Cattaneo Impianti SA - Chiasso
Specialista impianto elettrico
P&P studio elettrotecnico Sagl - Chiasso
P&P studio elettrotecnico Sagl - Chiasso
Anno
2018-2013
2018-2013
VSIA 416
10000 m³
10000 m³
Cod. Rif.
105 - MSPC
105 - MSPC













